长辈版
无障碍
简体
繁体
一网
搜
网站首页
首 页
资讯中心
县长之窗
政府信息公开
政务服务
互动交流
解读回应
数据发布
魅力祁门
政务新媒体
当前位置:
首页
>
政务服务
>
公告公示
>
住房
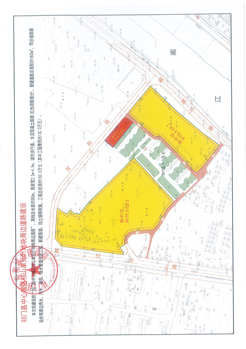
关于祁门县中心城区祁山单元01地块周边道路建设工程设计方案(征求意见稿)的公示公告
作者:祁门县住建局
发布时间:2025-11-27 16:46
信息来源:祁门县住房和城乡建设局
阅读次数:
次
字号:
大
中
小
我要纠错
打印
收藏
[ 我要纠错 ]
[关闭窗口]
扫一扫在手机打开当前页
智能云搜
政务微信
政务微博
站点统计
分享